FAQ
CONTACT
EN
EL
ABOUT
CONSTRUCTION METHODS
CONSTRUCTION COST
SERVICES
PROPOSED HOUSE PLANS
COMMERCIAL BUILDINGS
VIDEOS
EN
EL
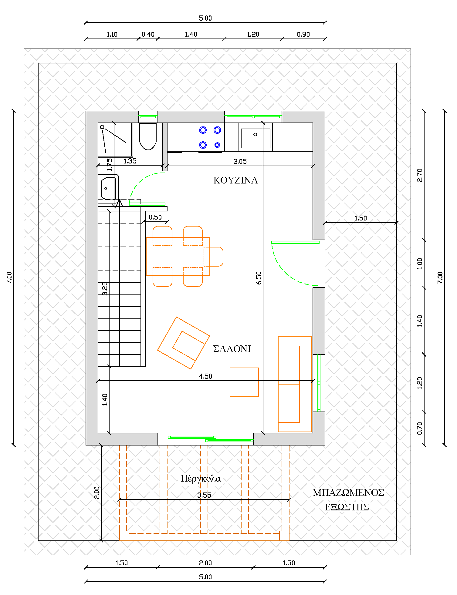
Plan 4
Home
Proposed House Plans
Plan 4
52,00 M2 Ground Floor With Loft, One Bedroom, One Bathroom
We use cookies to ensure that we give you the best experience on our website
Accept
ABOUT
CONSTRUCTION METHODS
CONSTRUCTION COST
SERVICES
PROPOSED HOUSE PLANS
COMMERCIAL BUILDINGS
VIDEOS
FAQ
CONTACT